
|
想必大家在自建房的时候都纠结过一个问题,到底是选择坡顶还是平顶?坡顶更美观,不易积水、漏水,隔热效果也更好。但是施工难度大、造价也高。与之相比,平屋顶的房屋就更平易近人了,而且可以上到屋顶运动和观景,农村还可以晾晒粮食,房屋利用率更高,只要修建过程中没有偷工减料,也不用担心积水、漏水的问题。下边给大家分享超好看的平顶二层楼图片大全,其中包含10套别墅设计,建筑面积从90平方米到300平方米,一起来看看吧! 第一套:现代风小户型新农村二层别墅图纸介绍:精致小巧新农村二层别墅设计图纸,占地70平米左右,造价15万左右,整体方正规整,线条利落,是当下非常流行的现代简约风,没有复杂的雕花装饰,靠简洁的造型和配色凸显质感。 占地面积:8.2m*9.2m,73平方米左右; 建筑层高:二层; 建筑高度:9.7米; 设计功能: 一层户型:客厅、餐厅、厨房、卧室、卫生间; 二层户型:客厅、卧室x2、卫生间、阳台;
第二套:现代极简风格的二层独栋自建房图纸介绍:占地100平米左右,造价25万左右,整体造型利落大气,颜值与实用性拉满,非常适合乡村自建,经济实用型的别墅比起欧式和中式风格的豪华,更耐看和具有情怀。 占地面积:10m*12.4m,110平方米左右; 建筑层高:二层; 建筑高度:10.1米; 设计功能: 一层户型:客厅、餐厅、厨房、卧室(带卫生间)、卫生间; 二层户型:客厅、主卧(带卫生间)、卧室x2、卫生间、棋牌、阳台;
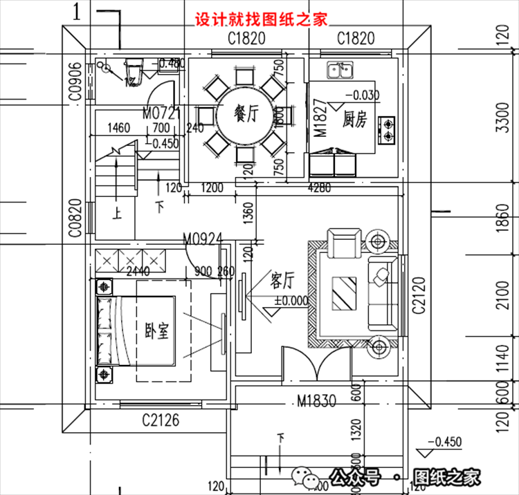
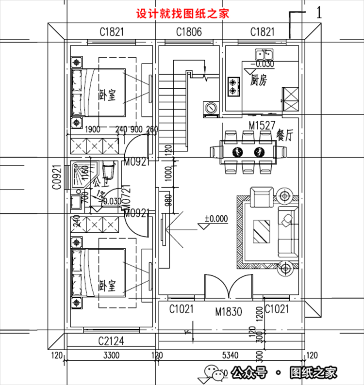
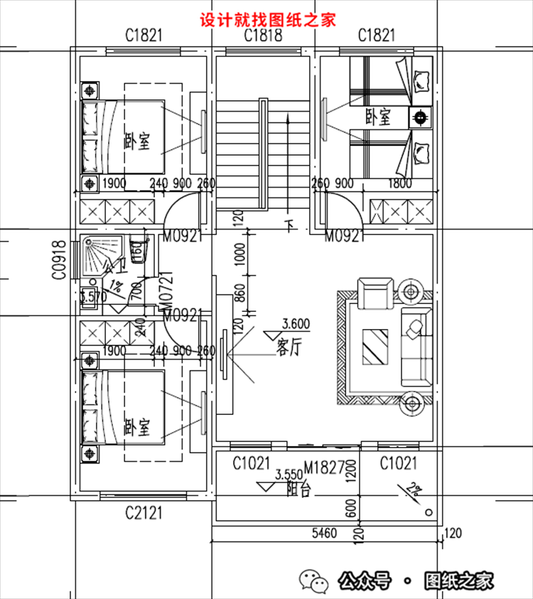
第三套:融合现代简约与轻奢细节的二层独栋自建房图纸介绍:占地90平米左右,造价15万左右。整体造型规整大气,颜值与实用性兼具,是农村自建房的热门设计款。用细节点缀高级感,既符合当代审美,又适配乡村居住场景,耐看不易过时。 占地面积:9.0m*11m,90平方米左右; 建筑层高:二层; 建筑高度:7.3米; 设计功能: 一层户型:客厅、餐厅、厨房、卧室×2、卫生间; 二层户型:客厅、卧室x3、卫生间、阳台;
第四套:简约风格的二层农村自建房图纸介绍:简约风格的二层农村自建房效果图,占地90平米左右,造价15万左右,标准的两层独栋户型,线条简洁工整,比例协调,适配大多数农村宅基地。 占地面积:9.7m*8.9m,80平方米左右; 建筑层高:二层; 建筑高度:6.9米; 设计功能: 一层户型:客厅、餐厅、厨房、卫生间、卧室; 二层户型:客厅、卧室x3、卫生间、阳台;
第五套:精致小巧新农村二层别墅图纸介绍:精致小巧新农村二层别墅设计图纸,占地90平米左右,造价15万左右,经济实用型的别墅比起欧式和中式风格的豪华,更耐看和具有情怀。 占地面积:9.8m*9.3m,90平方米左右; 建筑层高:二层; 建筑高度:10.8米; 设计功能: 一层户型:客厅、餐厅、厨房、卧室、卫生间、储藏间; 二层户型:客厅、卧室x2、卫生间、书房、阳台;
第六套:10万左右的2层小洋楼图纸介绍:造价10万左右的2层小洋楼设计图,平屋顶,户型设计合理,屋顶有大露台,活动休闲空间充足,露台可用于晾晒农作物等,非常实用。 占地面积:8.5m*10.3m,90平方米左右; 建筑层高:二层; 建筑高度:7.5米(含屋顶); 设计功能: 一层户型:客厅、餐厅、厨房、老人房(带卫生间)、卫生间; 二层户型:卧室x3、卫生间、阳台x2;
第七套:漂亮经济实用二层农村小别墅图纸介绍:漂亮经济实用二层农村小别墅最新房屋设计图。既然是盖别墅了,那一定得讲究点,首先外形要漂亮,其次空间要大,不能再像商品房那样憋屈,再次,要质量好点,不能出现漏水返潮之类的质量问题。 占地面积:11.5m*9.5m,110平方米左右; 建筑层高:二层; 建筑高度:9.9米(含屋顶); 设计功能: 一层户型:客厅、餐厅、厨房、卫生间、主卧(带卫生间); 二层户型:客厅、卧室(带卫生间)、卧室、书房、卫生间、阳台、厨房(可做储藏间);
第八套:经济实用二层复式楼房设计图图纸介绍:经济实用二层复式楼房设计图 ,占地150平方米,造价25万左右 ,良好的挑空,能够增强室内的采光和通风效果,提升空间的立体感、层次感。私人定制版,独家设计。 占地面积:12.0m*13.6m,150平方米左右; 建筑层高:二层; 建筑高度:10.9米(最高点); 设计功能: 一层户型:客厅、餐厅、厨房、卧室、棋牌室、储藏室、卫生间; 二层户型:客厅上空、卧室(带卫生间)、卧室×2、衣帽间、卫生间、露台;
第九套:二层带地下室楼房设计方案图纸介绍:本户型为二层带地下室楼房设计方案,全套施工图+效果图,带地下室,屋顶是平屋顶(做为大露台),本方案分区比较明确,卫生间旁的卧室建议做为棋牌室、娱乐房、活动房等。 占地面积:14.4m*10.6m,一层建筑面积160平方米左右; 建筑层高:二层; 建筑高度:9.90米(含屋顶); 设计功能: 地下户型:功能自定义; 一层户型:门厅、客厅、卧室x3、厨房、餐厅、卫生间; 二层户型:客厅、卧室x4、卫生间、露台、阳台;【卫生间旁的卧室建议做成棋牌室、娱乐室等】
第十套:最漂亮的农村二层小楼图图纸介绍:最漂亮的农村二层小楼,平屋顶的设计对于农村来说尤为便利。建筑特色就是多卧室的户型,以朴质为主,外墙的配色还有房子的造型都体现出一种农村质朴的风俗习惯。 占地面积:18.0m*9.0m,170平方米左右; 建筑层高:二层; 建筑高度:11.1米(最高点); 设计功能: 一层户型:客厅、餐厅、厨房、卫生间、卧室(带卫生间)×2; 二层户型:卧室(带卫生间、小卧室)×2、卧室(带卫生间)×3;
第十一套:农村4间2层楼房设计图图纸介绍:农村4间2层楼房设计图,户型方正,四平八稳的二层农村别墅。在风水学上,方正的房子户型形状,可以使气的能量产生平衡的循环流动,不会产生太过或不及的祸患,从而有益于宅主的身心健康。 占地面积:15.2m*11.6m,180平方米左右; 建筑层高:二层; 建筑高度:11米(含屋顶); 设计功能: 一层户型:客厅、餐厅、厨房、卫生间、主卧(带卫生间)、卧室; 二层户型:卧室(带卫生间、衣帽间)×2、卧室(带卫生间)×2、洗衣房、露台;
第十二套:气派美观的平顶别墅房屋图纸介绍:本户型为气派美观的平顶别墅设计方案,简欧风格,二层到楼顶设有楼梯,楼顶上有凉亭、活动房、露台等。 占地面积:14.0m*13.8m,190平方米左右; 建筑层高:二层; 建筑高度:9.60米(含屋顶); 设计功能: 一层户型:门厅、客厅、厨房、餐厅、卧室(含卫生间、衣帽间)、卧室x2、书房、卫生间、洗衣房(储物间); 二层户型:起居室(客厅)、卧室(带衣帽间和卫生间)、卧室x3、书房、卫生间、阳台; 三层户型:凉亭、露台、活动室。
第十三套:简单农村二层平屋顶房屋图纸介绍:本方案为简单农村二层平屋顶房屋设计图,外观简洁、大方,不加多余装饰,内部布局符合农村人的生活习惯,餐厅、厨房独立,设有单独的钢梯上二楼,二楼又有钢梯直通屋顶,屋顶相当于大晒台,非常实用。 占地面积:16.5m*12.2m,200平方米左右; 建筑层高:二层; 建筑高度:9.4米(含屋顶); 设计功能: 一层户型:客厅、主卧(带卫生间)、卧室x2、卫生间、会客厅、餐厅、厨房、储藏间; 二层户型:客厅、卧室x2(带卫生间)、卧室x2、健身房;
第十四套:中式四合院风格别墅设计图图纸介绍:中式四合院风格别墅设计图,书房、茶室、健身房一应俱全,二层大露台,很适合老人活动养养花,晒晒太阳!这样的房子最适合建给辛苦了一辈子的父母,让时光变慢!此款四合院不用于其他四合院的地方是它是平屋顶的设计。 占地面积:24.3m*20.6m,367平方米左右; 建筑层高:二层; 建筑高度:7.3米; 设计功能: 一层户型:客厅、餐厅、厨房、卫生间、主卧(带卫生间,衣帽间)×2、卧室(带卫生间)书房、茶室,健身房、庭院; 二层户型:客厅、主卧(带卫生间,衣帽间)、卧室(带卫生间)×2、书房、茶室、公卫、大露台;
现在对农村自建房建筑面积的审批是越来越严格了,与其修建坡顶房屋而把屋顶空间浪费,不如修建屋顶可以自由活动的平顶房屋。平顶房屋施工简单,在造价上也有自己的优势,相信会收到很多人的青睐。超好看的平顶二层楼图片大全推荐给你,喜欢就修建一栋吧!
图纸之家-专注农村别墅/自建房设计18年,集合国内200余位经验丰富的设计师,被评为口碑最好的农村建筑设计公司! |

二层官帽房别墅设计图,寓意人才辈出步步高升,建好全村羡慕!
占地:111.76平方米
流行款!二层官帽房别墅设计图,寓意升官发财添贵气!
占地:112平方米
二间二层小型别墅设计图,美观、经济、实用!
占地:96平方米
占地80平农村一层平房设计图,小进深的必看
占地:77.11平方米
农村一层平房设计图,人字坡户型简单大方,养老自住都不错
占地:139.2平方米
省钱美观一层自建房子设计图,父母养老住很适合
占地:117平方米
2款带露台农村别墅设计图二层精选,造价超值性价比
占地:多户型可选
最好看的农村三层楼房设计图,占地113平米,小平米大格局
占地:110平方米
小占地的农村别墅设计图,占地仅72平米,参考造价不到15万
占地:多户型可选
一层中式三合院农村自建别墅图,面宽18米带堂屋设计
占地:165.72平方米
农家中式小院一层三合院自建房,布局宽敞大气又舒适
占地:186.07平方米
精致实用二层农村自建别墅,简约时尚颜值高,采风通风效果好!
占地:153.14平方米
开间12米进深10米二层农村别墅设计,户型超实用
占地:115.82平方米
100平方米左右新农村二层房屋设计建筑CAD图纸带外观效果图
占地:多户型可选
简单二层农村别墅设计图,占地适中,简约造型,实用又经济!
占地:128.4平方米
一层农村自建房设计,背面不开窗,15乘10米,内部布局实用
占地:多户型可选
二开间二层别墅设计图,面宽9米,不可多得的好选择!
占地:93.24平方米
二层农村别墅新风尚,简约实用,性价比高,美丽又实惠
占地:126平方米
经济实用二层农村自建房设计图,新中式风格12x11米
占地:114平方米
一层农村自建房设计,背面不开窗,15乘10米,内部布局超实用
占地:150平方米
推荐:10套新农村自建房设计图,2026年最新设计
阅读次数:4842693次
100套乡村别墅图片大全,2026年最新设计
阅读次数:2502922次
这11个一层农村自建房别墅火爆了朋友圈!我最喜欢户型十!你呢
阅读次数:753071次
农村5万块就能自建房,6套普通房子设计图分享,你没看错!
阅读次数:429899次
8套农村漂亮三间平房图片,非常适合在农村修建!
阅读次数:420616次
新农村二层楼房图片造价12万,挑一套回家建房吧!
阅读次数:357977次
农村一层三间平房设计图,告别土气养老房,让人忍不住点赞
阅读次数:357938次
40款全新设计二层别墅外观图片大全,最漂亮的农村二层小楼
阅读次数:344239次
最适合农村的四合院图片,农村四合院图片大全!
阅读次数:327598次
8米宽12米长房屋设计图及效果图,10套全新设计图纸
阅读次数:310224次
